TE KOWHAI LANDING

PROJECT STAGE Completed 2004
PROJECT ARCHITECT Charissa Snijders
PROJECT TEAM Charissa Snijders + Eddie Van Uden, Equinox Design

AWARDS

NZIA Local Award 2004 Hospitality & Tourism

Client reference

More projects

 

Lakeside Boutique Accommodation

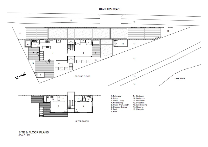
The client’s brief was to create a special lakeside dwelling that offered a quintessential New Zealand experience for international and national guests. The design is an imaginative response to the brief and an unusual triangular site opening onto Taupo’s lakefront reserve. The small piece of land presented unique challenges, particularly access, road noise, privacy, security and a Notified Resource Consent.

Read more

 

timelessness beauty

breathing the land’s own essence

exuding spirit

simple elemental hues

passion held deep inside: calm


 
 
 

The outcome is a building that is evenly sited, in balance and harmony with the natural and physical environment, whilst at the same time holding its own presence. It strengthens the features of the land – complementing the line of the road on the east, and on the west side, embracing the lake.

The form of the building employs the vernacular of the Kiwi boat shed and bach. The use of materials reiterates the interplay of exterior and interior spaces, creating an informal and ever changing feel to the experience.

 

'An absolute delight, this  lake front house had a difficult gestation, but perseverance has produced a stunning result. In the process from concept to creation the community has also seen the quality and value an architect can make to the urban environment.'

- Judges Citation -